ABL1500 Air-Bearing Direct-Drive Linear Stage
Leading-edge manufacturing and inspection processes demand positioning tolerances beyond the capability of conventional ball-screw and mechanical-bearing positioning systems. The ABL1500 air bearing stage, with its fully-active preload, exceptionally high stiffness and excellent geometric characteristics, was designed specifically to meet those demands.
Description
Specifications
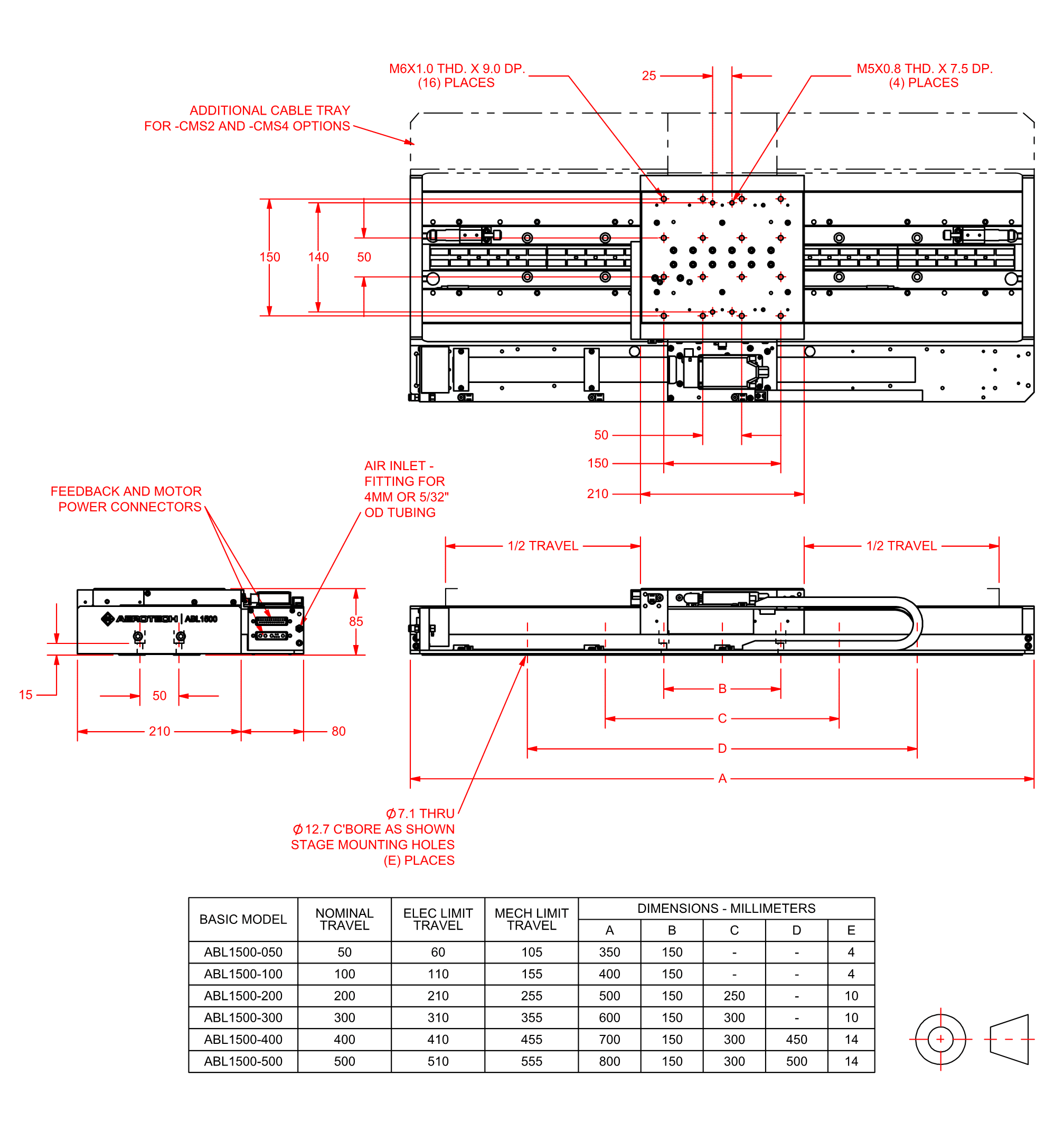
Dimensions
Ordering Info
Downloads
Description
Description
Specifications
Dimensions
Ordering Info
Downloads
Description
Design Features
- Designed for high-performance scanning and inspection
- Active air preload on all air bearing surfaces
- Linear encoder feedback provides sub-nanometer resolution
- High stiffness for heavy loads and excellent geometric performance
- Travel up to 500 mm
Air-Bearing Design for High Dynamic Performance
The ABL1500 incorporates an air-on-air preload on both the vertical and horizontal surfaces. The opposing thin-film pressure maintains the bearing nominal gap tolerance. This design, in addition to the large air bearing surface that distributes the load over a large surface area, results in a stage with outstanding stiffness that is ideal for heavy or offset loading.
Proprietary manufacturing techniques result in a stage with unsurpassed geometric characteristics. The air bearing has an inherent averaging effect that maximizes performance. The thin film will fill small surface voids and allow for other irregularities. This characteristic yields superior pitch, roll, yaw, straightness and flatness specifications.
Linear Motor Drive
The driving force behind this stage is Aerotech’s BLMC series brushless linear servomotor. Aerotech’s long history and experience as a motor manufacturer is reflected in this design. The BLMC utilizes an ironless forcer, which means there is zero cogging and no attractive forces, resulting in unsurpassed smoothness of motion. Capable of generating high force and velocity, the BLMC represents the ultimate combination of power and performance.
Zero Maintenance
Our totally noncontact air bearing, noncontact linear motor drive and noncontact feedback device ensure years of maintenance-free operation at the high performance levels that are expected of Aerotech equipment. Because there is no mechanical contact between moving elements, the ABL1500 experiences no wear or reduction in performance over time. Service life is virtually unlimited and since there is no lubrication – only clean, dry gas – air bearings are ideal for cleanroom and medical applications.
Cable Management
We carefully optimize the cable bend radius to ensure years of trouble-free operation. In the unlikely event of failure, Aerotech’s modular design makes cable replacement quick and easy with minimal downtime. We include all customer-required cables, air hoses, etc. in our CMS bundle to facilitate integration into the final system. Both ends are fully connectorized for simple integration into the customer’s machine.
Ordering Information
Travel (Required)
| Option | Description |
| -050 | 50 mm travel |
| -100 | 100 mm travel |
| -200 | 200 mm travel |
| -300 | 300 mm travel |
| -400 | 400 mm travel |
| -500 | 500 mm travel |
Feedback (Required)
| Option | Description |
| -E1 | Incremental linear encoder, 1 Vpp amplified sine output |
| -E2 | Incremental linear encoder, 0.1 µm TTL line driver output |
| -E3 | High-accuracy incremental linear encoder, 1 Vpp amplified sine output |
Cable Management (Required)
| Option | Description |
| -CMS1 | Single axis cable management system |
| -CMS2 | Cable management system for XY assembly |
| -CMS3 | Cable management system for Y axis, upper axis only |
| -CMS4 | Cable management system for YZ assembly, upper axis only |
Metrology (Required)
| Option | Description |
| -PL1 | Metrology, uncalibrated with performance plots |
| -PL2 | Metrology, calibrated (HALAR) with performance plots |
Integration (Required)
Aerotech offers both standard and custom integration services to help you get your system fully operational as quickly as possible. The following standard integration options are available for this system. Please consult Aerotech if you are unsure what level of integration is required, or if you desire custom integration support with your system.
| Option | Description |
| -TAS | Integration - Test as system
Testing, integration, and documentation of a group of components as a complete system that will be used together (ex: drive, controller, and stage). This includes parameter file generation, system tuning, and documentation of the system configuration. |
| -TAC | Integration - Test as components
Testing and integration of individual items as discrete components that ship together. This is typically used for spare parts, replacement parts, or items that will not be used together. These components may or may not be part of a larger system. |
Accessories (to be ordered as a separate line item)
| Option | Description |
| ALIGN-NPA | Non-precision XY assembly |
| ALIGN-PA10 | XY assembly; 10 arc sec orthogonality. Alignment to within 7 microns orthogonality for short travel stages. |
| ALIGN-PA5 | XY assembly; 5 arc sec orthogonality. Alignment to within 3 microns orthogonality for short travel stages. |
| ABF | Air-bearing filtration kit |



